Tui Terraces
114, Tui Road, Papatoetoe
ALL SOLD!
Located within walking distance to a range of schools and childcare, Papatoetoe Centennial Pool & Leisure Centre, Recreation Grounds and Hunters Plaza. Benefiting from the convenience of a bus stop out front (with a direct link to the Manukau Train Station), and Papatoetoe Train Station close by, a short drive to Middlemore Hospital.
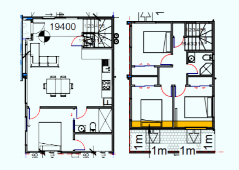
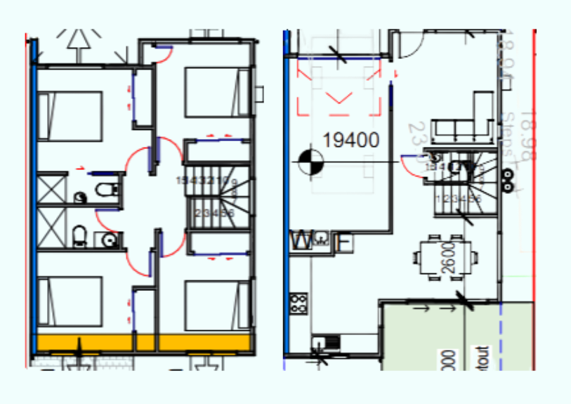
Floor Plan
2-Bedroom Unit
4-Bedroom Unit





