16 Geneva Place, Blockhouse Bay
Starting from $749K
Welcome to Geneva Terraces
Homes where comfort meets convenience
Explore the boutique collection of six thoughtfully designed homes, each crafted to suit the diverse needs of modern living. This exceptional project combines style, functionality, and comfort with unique layouts tailored for every lifestyle.
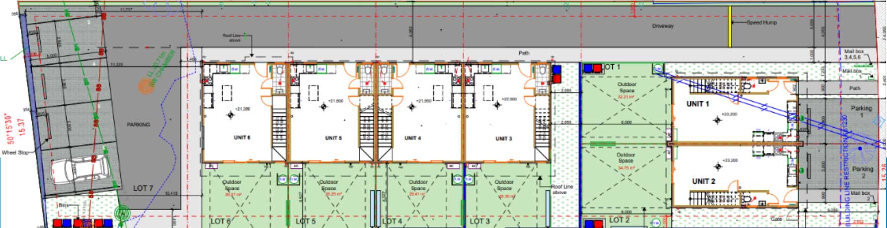
For families looking for spacious, contemporary homes, our two 2-bedroom units in Geneva Terraces offer a perfect home.
Four 3-bedroom homes featuring 1.5 bathrooms are perfect for small families or professionals who value simplicity without compromising on quality.
Located in the heart of Blockhouse Bay, a family-friendly Auckland suburb, these homes provide the perfect balance of suburban charm and urban convenience.
Experience secure, stylish, and convenient living at Geneva Terraces, a perfect place to call home.
What Makes Geneva Terraces a Perfect Fit for You?
From the solid, well-crafted exteriors to the thoughtfully designed interiors, Geneva Terraces reflect our commitment to quality and architectural functionality. These homes are built to last, offering a seamless blend of durability, smart layouts, and modern comfort, making them an ideal choice for everyone looking for a place to call home.
Located in the heart of Blockhouse Bay, Geneva Terraces offers the ideal lifestyle for modern homeowners.
Choose from smartly designed 2-bedroom units, perfect for those seeking a low-maintenance home with everyday essentials just around the corner, or enjoy the space and comfort of our 3-bedroom homes, ideal for growing families or anyone craving room to live and thrive.
No matter your lifestyle, Geneva Terraces offers a home that fits just right.
- Smart layouts, thoughtful spaces
- Low-maintenance, high-quality
- Family-friendly functionality
- Stylish interiors & finishes
- A calming colour palette creates a welcoming space.
Amenities
- Blockhouse Bay Town Centre 2 min away
- Lynfield Shopping Centre 6 min away
- Woolworths Blockhouse Bay 4 min away
- Alpine Superette 4 min away
- New Lynn Train Station 6 min away
- Glenavon School 2 min away
- Lynfield College 5 min away
- Blockhouse Bay Intermediate 3 min away
- Allevia Hospital Epsom 19 min away
- Auckland International Airport 24 min away
- Olympic Park 4 min away
- Blockhouse Bay Beach Reserve 5 min away
Layout Plans
Gallery







Enquire Now
Download full information pack to get complete overview of the project.